Villa a schiera in vendita

Marano Di Napoli, Via Cesina - Marano Cesina
€ 375.000
5 locali 5 locali
252 Mq 252 Mq
3 bagni 3 bagni

Villa a schiera in vendita

Marano Di Napoli, Via Cesina - Marano Cesina

Descrizione annuncio

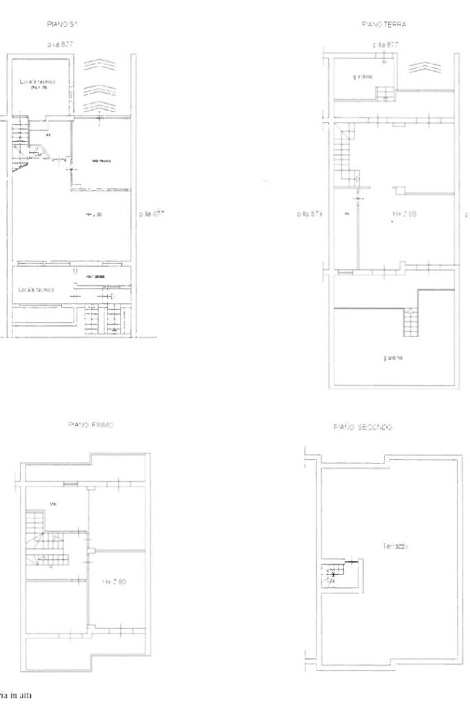
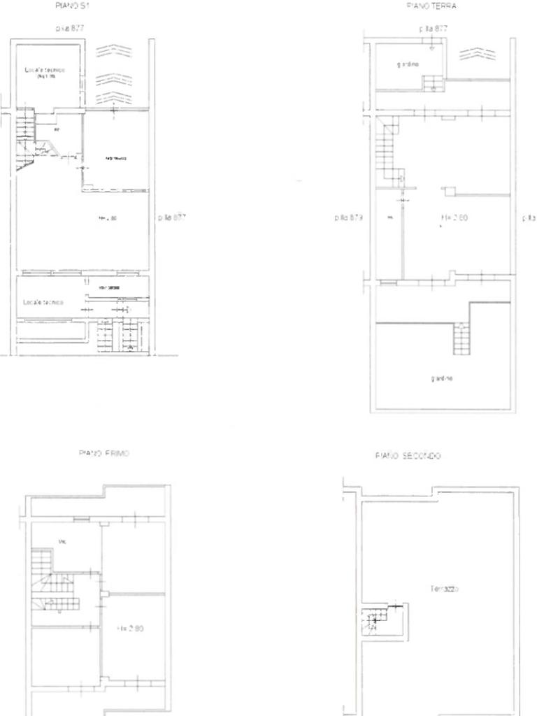
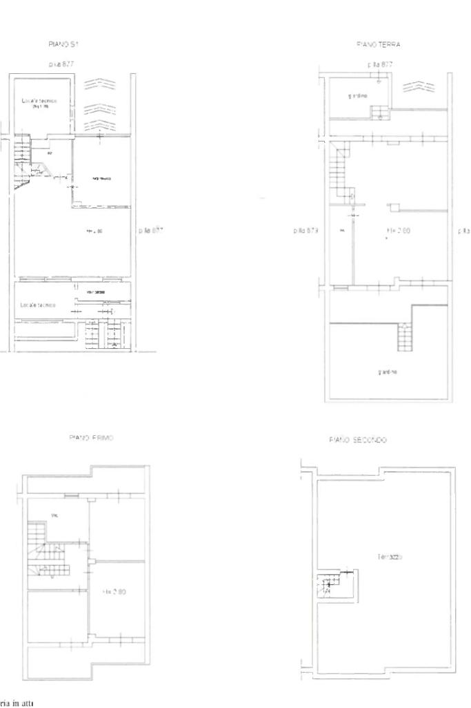
Situato in via Cesina, il parco «La Silvana» rappresenta un'oasi di tranquillità con le sue quindici villette a schiera, un contesto residenziale curato e sereno, che sembra quasi isolato dalla frenesia quotidiana. All'inizio del parco si erge la nostra villa capofila, un'abitazione pratica e comoda, perfetta per chi cerca un rifugio accogliente e funzionale.

L'accesso alla villa avviene attraverso un affascinante patio che conduce al terrazzino, da cui si entra nel salone principale. Questo spazio ampio e luminoso è il cuore pulsante della casa, ideale per accogliere momenti di convivialità. Una porta scorrevole separa il salone dalla cucina, un ambiente spazioso e confortevole, perfetto per le esigenze di famiglie numerose. La cucina, con il suo arredamento su misura che verrà lasciato in dotazione, vanta un doppio affaccio su un balcone che si apre su un giardino impreziosito da un maestoso albero d'ulivo. A completare questa zona giorno troviamo un pratico bagno di servizio.

Una porta a muro ci conduce alla tavernetta, uno spazio intimo e accogliente con camino, ideale per serate invernali. Adjacentemente, lo studio offre un angolo di quiete per il lavoro o lo studio, mentre il bagno con doccia aggiunge funzionalità alla zona. Questa parte della casa è comodamente accessibile anche tramite il box auto.

Salendo al secondo piano, ci accolgono tre camere da letto matrimoniali, ognuna concepita per garantire il massimo comfort. Completa la zona notte un elegante bagno dotato sia di doccia che di vasca, assicurando praticità e relax. Le camere godono di una doppia esposizione su balcone, inondando gli ambienti di luce naturale.

Un ulteriore valore aggiunto è rappresentato dal terrazzo di copertura, pavimentato e già predisposto per l'installazione di impianti, offrendo così la possibilità di personalizzare ulteriormente lo spazio secondo le proprie esigenze.

Questa villa è stata progettata con cura, sfruttando ogni angolo grazie agli armadi a muro, per offrire una soluzione abitativa che combina eleganza e funzionalità. Un'opportunità da non perdere per chi desidera vivere in un ambiente sereno e ben organizzato.

Mostra tutto

Nelle vicinanze

Trasporto pubblico Trasporto pubblico
Marano Quarto 168
Marano Quarto 168
110 m
Marano Quarto - Cesina
Marano Quarto - Cesina
130 m
Scuole Scuole
Scuola Media Massimo D'Azeglio
1,3 Km
Media Vittorio Alfieri
1,3 Km
Scuole
1,7 Km
Socrate ( padiglione Paolo Borsellino)
1,8 Km
"Carlo Levi"
2,0 Km
Farmacia Farmacia
Farmacia
1,7 Km
Morrica
1,9 Km
Parafarmacia Moderna
2,3 Km
Farmacia Chiefalo del Dr G. De Stasio
2,8 Km
Ospedali Ospedali
Villa dei fiori
2,5 Km
Azienda Sanitaria Locale Napoli 2 Nord
2,8 Km
Supermercati Supermercati
Issimo
1,2 Km
Carrefour Market
1,3 Km
Conad
2,8 Km
Supermercati
2,9 Km
Decò
3,0 Km
Negozi Negozi
Margaret Sposa Atelier
1,6 Km
Negozi
2,9 Km
Bar Bar
Bar
2,3 Km
Ristoranti Ristoranti
Russo
2,0 Km
Villa Holiday
2,3 Km
Mostra tutto

Caratteristiche

Rif.:
61205108
Piano:
1 di 1 (Piano su più livelli)
Box:
1
Posti auto:
1
Balconi:
4
Terrazzi:
1
Mostra tutto
Prezzo Prezzo
€ 375.000
Rata mutuo Rata mutuo
€ 1.789 / mese
Spese annue Spese annue
€ 300
Proponi il tuo prezzoProponi il tuo prezzo
Immobile valutato con T·Valuta

Classe Energetica

G
G
G
G
G
G
G
G
G
EP globale non rinnovabile:
123.00 kW h/m² anno
EP globale rinnovabile:
132.00 kW h/m² anno
EP invernale del fabbricato:
EP estiva del fabbricato:
Anno di costruzione:
1990
Riscaldamento:
Autonomo
Tipo impianto:
A radiatori
Tipo alimentazione:
Metano

Ti interessa visionare l'immobile?

Fissa un appuntamento  Fissa un appuntamento

Richiedi informazioni

Clicca su Leggi per aprire l'informativa
* Questi campi sono obbligatori

Calcola il tuo mutuo

Semplice e senza impegno
Anticipo

( % )
Mutuo

( % )

pochi semplici passi

inserisci i tuoi dati
Questionario completato
Grazie per aver richiesto un appuntamento senza impegno con un nostro Consulente del Credito e Assicurativo.

Hai inserito correttamente tutti i dati necessari e a breve riceverai una e-mail con un link da convalidare per inviare i tuoi dati.
Affiliato
Reteimmobiliare Marano Srl
Via San Rocco, 39 80016 Marano Di Napoli (NA)

Il nostro staff


  • Michele Addante
    Affiliato

  • Daniela Lourdes Longobardo
    Collaboratrice

  • Sara Pisano
    Responsabile

  • Rossana Esposito
    Responsabile
Via San Rocco, 39 80016 Marano Di Napoli (NA)
Zona: Marano
Mostra su mappa
Orari: dal Lunedì al Venerdì 09:00 - 13:00 _ 15:30 - 20:00 Sabato fino alle 18:00
Affiliato
Reteimmobiliare Marano Srl
Via San Rocco, 39 80016 Marano Di Napoli (NA)

2026 Tecnocasa Franchising S.p.A. - P. IVA 08365160152 - Via Monte Bianco 60/A 20089 Rozzano (MI). Ogni agenzia ha un proprio titolare ed è autonoma. Privacy policy | Policy utilizzo | Cookie policy